وصف العقار
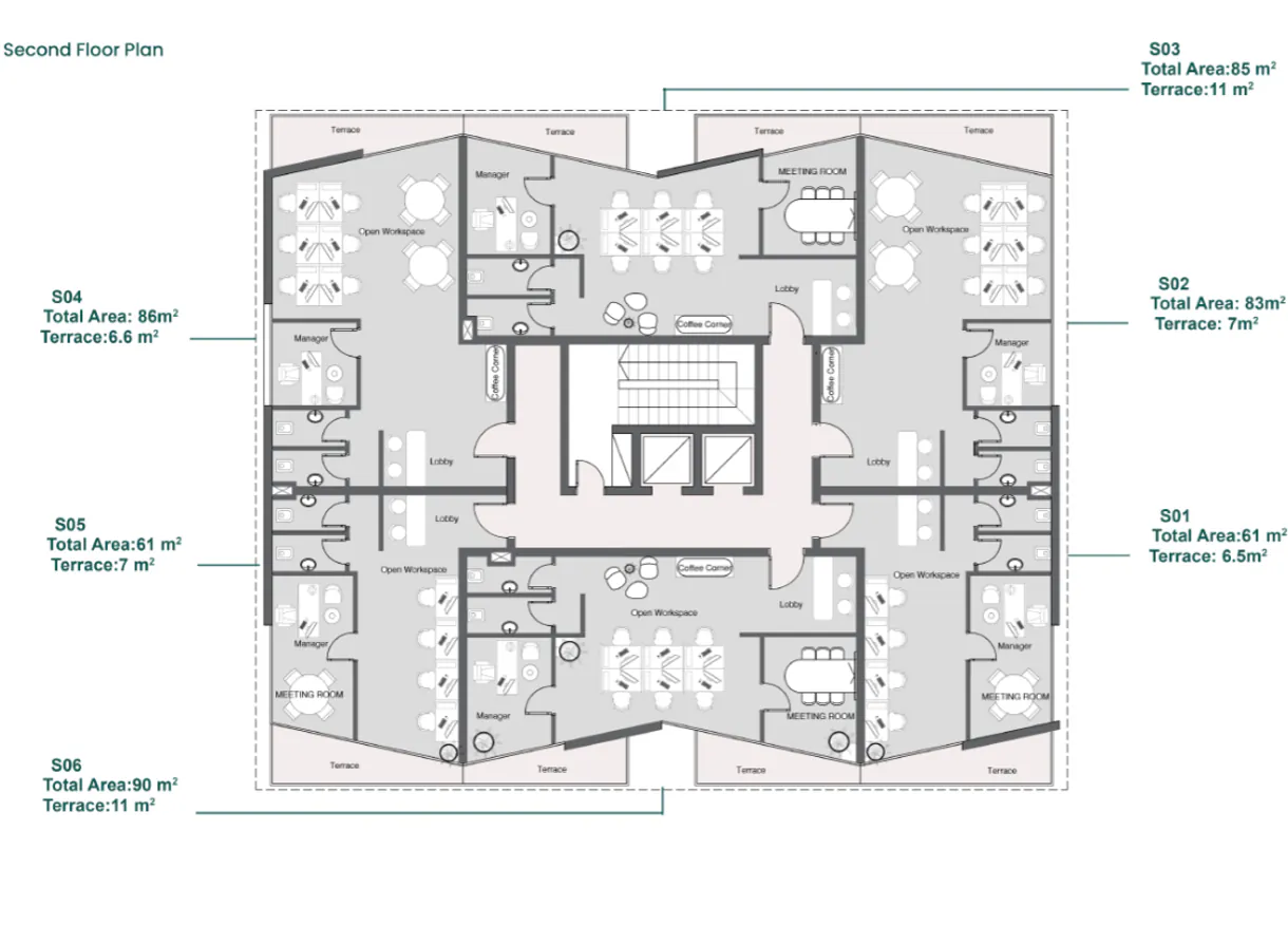
اكتشف مكتب بمساحة 86 متر مربع في بيينج من لاند مارك للتطوير العقاري، وسط مدينة الشيخ زايد، حيث يلتقي التصميم العصري بالمساحات الرحبة. يضم المكتب ثلاث غرف واسعة وحمامين أنيقين، مع نوافذ كبيرة تغمر المكان بالضوء الطبيعي وتمنحك إحساساً بالحيوية. تراس بمساحة 7 متر مربع تضيف بعداً جديداً لتجربة العمل، حيث يمكنك الاستمتاع بجلسات عمل في الهواء الطلق أو لحظات هادئة مع فنجان قهوة. التشطيبات الفاخرة والتفاصيل المريحة تخلق بيئة عمل مثالية تجمع بين الإنتاجية والراحة، وتجعل كل يوم في بيينج تجربة ملهمة.
وصف الكمباوند
الرفاهية والخدمات
كمباوند بيينج من لاند مارك للتطوير العقاري يقدم تجربة متكاملة تجمع بين الفخامة والخدمات العملية في قلب الشيخ زايد. من لحظة وصولك، تستقبلك خدمة الكونسييرج لتسهيل كل تفاصيل يومك، بينما يوفر مركز الأعمال أحدث حلول الطباعة وإنترنت سريع. هناك غرف اجتماعات خاصة وقبب للاسترخاء، تمنحك بيئة مثالية للإبداع أو التركيز. مفهوم ميندسيت من لاند مارك وLA7 يضيف بعداً صحياً جديداً، مع جلسات سبا، استشارات تغذية، وتطبيق ذكي ينظم يومك بسلاسة. الضيافة تمتد خارج المكتب، مع مقاهي بوتيك، خيارات طعام راقية، وصالات عمل مشتركة تدعو للتواصل. الأمن متوفر بشكل هادئ، ومواقف السيارات قريبة دائماً. التصميم يجمع بين الفخامة والعملية، ليجعل كل مساحة من الأفنية المشمسة إلى التراسات الأنيقة مكاناً مريحاً وعملياً. السكان والمهنيون يستفيدون من خدمات مصممة خصيصاً، مثل المساعدة بالغرف، أثاث مريح، ودعم طبي متواجد. سواء كنت تستقبل ضيفاً أو تسترخي بعد العمل، بيينج يمنحك نمط حياة يجمع الراحة بالإنتاجية. لمزيد من التفاصيل حول بيينج وخدماته، تعرّف على بيينج.











