وصف العقار
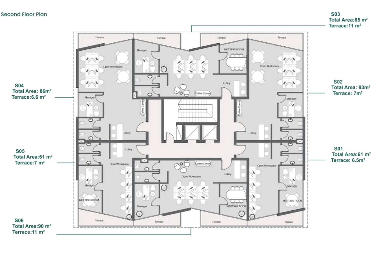
اكتشف مكتب بمساحة 85 متر مربع في بيينج من لاند مارك للتطوير العقاري بمدينة الشيخ زايد. المكتب يضم غرفتين وحماماً بتصميم عصري، مع شرفة خاصة بمساحة 11 متر مربع تفتح على الهواء الطلق وتغمر المكان بالضوء الطبيعي. تدفق المساحات بين الداخل والخارج يمنحك بيئة عمل محفزة، بينما التشطيبات الفاخرة والخطوط المعمارية الأنيقة تضيف لمسة من التميز. الموقع داخل بيينج يضمن لك وصولاً سلساً كل صباح، مع أجواء المجتمع النابضة حولك. التصميم يدعم الخصوصية والتواصل في آن واحد، ليصبح المكتب مساحة تجمع بين الإبداع والراحة، في قلب مشروع متكامل من لاند مارك للتطوير العقاري. قربك من الشيخ زايد يمنحك سهولة الوصول لكل ما تحتاجه، مع إحساس دائم بالهدوء والتميز.
وصف الكمباوند
الابتكار والتصميم
بيينج من لاند مارك للتطوير العقاري يمثل نموذجاً للابتكار في تصميم المجتمعات المتكاملة بمدينة الشيخ زايد. المخطط الرئيسي يجمع بين السكن، الأعمال، والرفاهية في تناغم فريد، حيث ترتبط المساحات الخضراء بمحلات البوتيك وأركان العمل المشترك لتشكيل بيئة نابضة بالحياة. البنية التحتية الذكية تظهر في كل التفاصيل: إنترنت عالي السرعة، إضاءة موفرة للطاقة، وأنظمة إدارة المياه لضمان الاستدامة والراحة. مركز ميندسيت للرفاهية، بالشراكة مع LA7، يدمج الإنتاجية مع العناية الذاتية، ويقدم استشارات غذائية، استوديوهات إبداعية، وخدمات رقمية متطورة. التفاصيل المعمارية تميز بيينج—أفنية مشمسة، فيلات مكتبية مريحة، وتراسات مصممة لتعزيز الإضاءة والتهوية الطبيعية. تصميم الكمباوند يشجع على الحركة والتفاعل، مع وحدات خصوصية ومساحات عمل مرنة للتركيز. السكان والمهنيون يستفيدون من خدمات مخصصة مثل الكونسييرج، قبب الاسترخاء، والوصول الرقمي السلس. بالقرب منك مدارس مثل بيفرلي هيلز الدولية، مستشفيات مثل زايد التخصصي، ومحلات تجارية على بعد دقائق. فلسفة التصميم تظهر في كل زاوية، من تنسيق الحدائق إلى الفعاليات الاجتماعية التي تعزز التواصل. بيينج ليس مجرد مكان للسكن أو العمل—إنه رؤية حديثة للحياة حيث الابتكار يصنع كل تجربة.
للتعرف أكثر على تفاصيل بيينج وخدماته، زر صفحة بيينج.











