وصف العقار
ادخل إلى مساحة مكتبية واسعة تبلغ 498 متر مربع في سوان ليك ريزيدنس من حسن علام للتطوير العقاري، وسط القاهرة الجديدة. تضم أربع غرف واسعة وحمامين بتصميم عصري، وتستقبل النوافذ المزدوجة الضوء الطبيعي ليمنح المكان أجواء مريحة ومحفزة للعمل. التصميم المفتوح يتيح مرونة عالية في توزيع المساحات، بينما تتيح التشطيبات غير النهائية تخصيص المكتب حسب احتياجات شركتك. الممرات الرخامية والتفاصيل الفاخرة في المناطق العامة تضيف لمسة من الرقي، مع توفر الأمن والتكييف والمصاعد لتوفير أقصى درجات الراحة. موقع المكتب داخل سوان ليك ريزيدنس يمنحك إطلالات على الحدائق والمساحات الخارجية، لتستمتع أنت وفريقك ببيئة عمل هادئة بعيدًا عن صخب المدينة. كل زاوية هنا مصممة لتعزز الإنتاجية وتدعم التواصل بين أفراد الفريق.
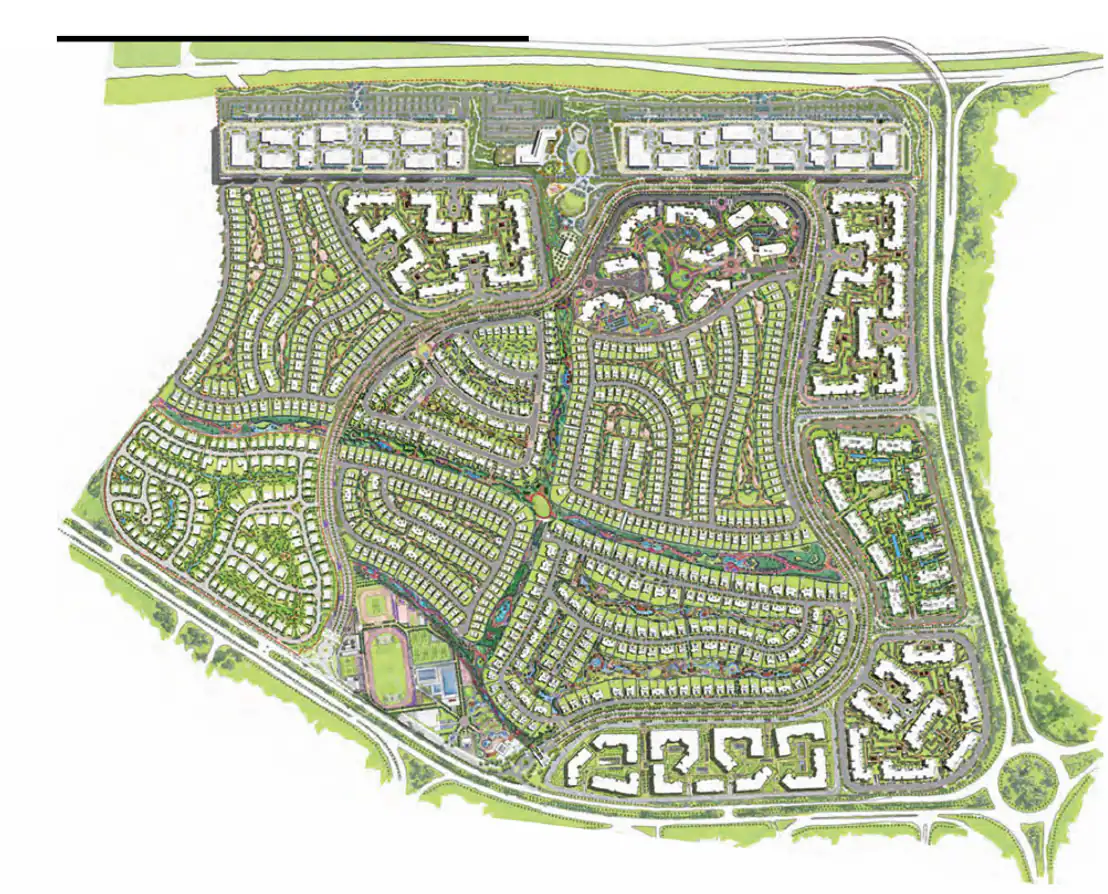
وصف الكمباوند
المجتمع ونمط الحياة
سوان ليك ريزيدنس ليس مجرد عنوان فاخر، بل مجتمع نابض بالحياة يجمع بين الطموح المهني والراحة الشخصية. يضم الكمباوند اثني عشر حيًا مغلقًا توفر بيئة آمنة وودية، مع مساحات خضراء ونوافير مياه تمنح السكان والزوار شعورًا بالاسترخاء والتجدد. الأنشطة الاجتماعية متنوعة، من فعاليات موسمية إلى ورش الصحة وبرامج التواصل المهني، لتشعر دائمًا بالحيوية والانتماء. نادي رياضي بمساحة 68,000 متر مربع يتيح لك ممارسة الرياضة أو المشي في المسارات المخصصة، لتنتقل بسهولة من يوم عمل نشط إلى لحظات استرخاء. العائلات تستفيد من قرب المدارس المرموقة مثل الجامعة الأمريكية بالقاهرة، مع توفر خدمات صحية ومرافق طبية قريبة. خيارات التسوق والمطاعم داخل الكمباوند تلبي جميع الاحتياجات اليومية، من المقاهي الهادئة إلى المطاعم الراقية. تخطيط سوان ليك ريزيدنس يركز على التواصل، حيث تربط المسارات بين الأحياء وتتحول الحدائق إلى أماكن تجمع للعائلات والأصدقاء. هنا، الحياة اليومية تنبض بالراحة والأمان ومتعة المشاركة. لمزيد من التفاصيل حول نمط الحياة والمرافق في سوان ليك ريزيدنس، تصفح سوان ليك ريزيدنس.
















