وصف العقار
اكتشف مساحة عمل تجمع بين الراحة والأناقة في مكتب بمساحة 274 متر مربع داخل سوان ليك ريزيدنس من حسن علام للتطوير العقاري في القاهرة الجديدة. أربع غرف واسعة وحمامين يتيحان تدفق الحركة والضوء الطبيعي عبر النوافذ المزدوجة، بينما التصميم الداخلي غير المكتمل يمنحك حرية تشكيل المساحة حسب رؤيتك. أنظمة متطورة وتشطيبات فاخرة تضفي إحساسًا بالتميز، مع ممرات رخامية تضيف لمسة من الفخامة اليومية. الأمن، ونظام التكييف، والمصاعد كلها متوفرة لتجعل يومك أكثر سهولة وراحة. موقع المكتب داخل سوان ليك ريزيدنس يحيطك بمناظر طبيعية هادئة، لتبدأ يومك بإحساس بالترحيب وتنهيه براحة البال.
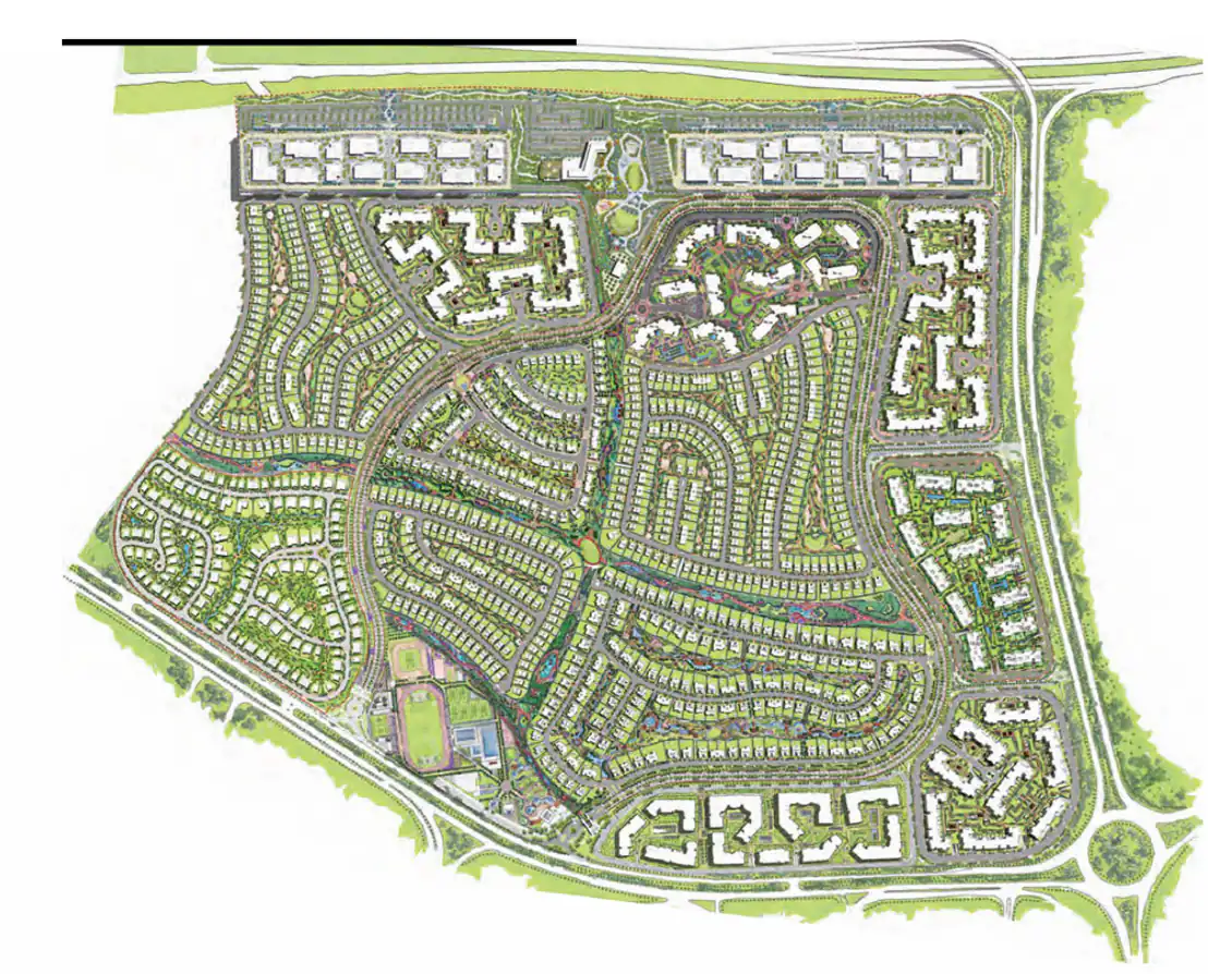
وصف الكمباوند
المجتمع وأسلوب الحياة
سوان ليك ريزيدنس ليس مجرد مجمع سكني، بل مجتمع نابض بالحياة يفتح أمامك أبوابًا جديدة كل يوم. المشروع من حسن علام للتطوير العقاري يقع في قلب القاهرة الجديدة، ليمنحك أسلوب حياة يجمع بين الهدوء والتواصل الاجتماعي. اثنا عشر حيًا مغلقًا صُممت لتعزيز روح الانتماء والتنوع الثقافي، حيث تلتقي العائلات وتزدهر العلاقات. في النادي الرياضي الذي تبلغ مساحته 68,000 متر مربع، تجد أكاديميات رياضية وخبراء صحة يساعدون الجميع على تحقيق أفضل أداء. مسارات الجري والدراجات تتخلل المساحات الخضراء، بينما المناطق الخارجية والحدائق الواسعة توفر أماكن مثالية للقاءات والراحة. الموقع الاستراتيجي يضعك بالقرب من الرحاب ومدينة ميراج، بالإضافة إلى سهولة الوصول إلى مطار القاهرة الدولي والجامعة الأمريكية. الحياة اليومية هنا سهلة بفضل الطرق الرئيسية القريبة، والمدخلات الخاصة لكل حي. من بين المرافق المميزة:
- برامج رياضية وصحية متخصصة
- حدائق ونوافير طبيعية
- بوابات أمنية ونقاط وصول خاصة
- نوادي اجتماعية وفعاليات مجتمعية كل تفصيلة هنا تهدف لتعزيز العلاقات وتوفير بيئة محفزة للنمو والسعادة. سوان ليك ريزيدنس هو المكان الذي تبدأ فيه قصتك وسط الراحة والأناقة وروح المجتمع. لمزيد من التفاصيل حول أسلوب الحياة والمرافق في سوان ليك ريزيدنس، تعرّف على الكمباوند من هنا.
















