وصف العقار
اكتشف مساحة عمل تعيد تعريف مفهوم المكتب الحديث. مكتب بمساحة 201 متر مربع في سوان ليك ريزيدنس من حسن علام للتطوير العقاري بمدينة القاهرة الجديدة، يضم ثلاث غرف واسعة وحمامين، بتصميم يوازن بين العملية والأناقة. النوافذ المزدوجة تسمح بدخول الضوء الطبيعي ليمنح المكان أجواء مريحة ومحفزة للعمل. التصميم المفتوح يتيح لك تخصيص المساحات الداخلية حسب احتياجاتك، سواء أردت مناطق عمل جماعية أو زوايا هادئة. التشطيبات الفاخرة في المناطق العامة مثل الممرات الرخامية وغرف الخدمة تضيف لمسة من الرقي، مع أنظمة أمن وتكييف متكاملة لراحة البال. المصاعد السريعة تسهل التنقل، والموقع داخل سوان ليك ريزيدنس يمنحك بيئة عمل نابضة بالحياة وسط مجتمع راقٍ وطبيعة خلابة. هنا، تجد مكانًا يدعم نمو أعمالك ويعزز إبداع فريقك.
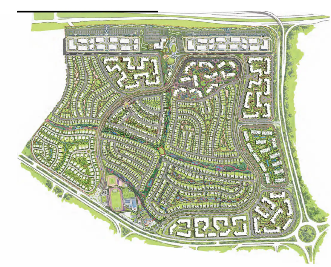
وصف الكمباوند
الموقع وسهولة الوصول
سوان ليك ريزيدنس يتميز بموقعه الاستثنائي في قلب القاهرة الجديدة، حيث يجمع بين الراحة والرقي. على بعد كيلومتر واحد فقط من الرحاب ومدينة ميراج، و٢ كم من سوان ليك قطامية، تجد نفسك قريبًا من كل ما تحتاجه. الجامعة الأمريكية وسيتي فيستيفال على بعد أقل من ٩ كم، ومطار القاهرة الدولي لا يبعد سوى ٦ كم، مما يجعل التنقل للعمل أو السفر في غاية السهولة. الطرق الرئيسية مثل طريق القاهرة – السويس والطريق الدائري تربطك بسرعة بشواطئ العين السخنة، مدينتي، مدينة الشروق، والعاصمة الإدارية الجديدة. العائلات تستفيد من قرب المدارس الدولية مثل البريطانية والشويفات، مع توفر العيادات والمستشفيات القريبة لتلبية احتياجات الصحة. التسوق والمطاعم العالمية والمحلية في متناول يدك، لتستمتع بحياة متكاملة دون عناء. تخطيط الكمباوند يضمن حركة مرور سلسة مع بوابات آمنة ونقاط دخول مخصصة، ليمنحك راحة البال في كل تفاصيل يومك. في سوان ليك ريزيدنس، كل رحلة تصبح أسهل وكل لقاء أقرب، لتعيش تجربة تجمع بين سهولة التنقل وجودة الحياة.
للتعرف أكثر على تفاصيل سوان ليك ريزيدنس وخدماته، زر الصفحة الرسمية من هنا.
















