Property Description
Step into a workspace that feels as inspiring as it is functional—a 219 SQM office, thoughtfully designed for modern professionals, nestled within Swan Lake Residences by Hassan Allam Properties in New Cairo. This office offers three spacious rooms and two bathrooms, with a layout that encourages natural light to pour in through double-glazed windows, creating an atmosphere that lifts your energy from the moment you arrive. The unfinished interiors invite you to shape the space to your vision, whether you crave open collaboration zones or private corners for deep focus. Every detail, from the premium marble corridors to the advanced HVAC and security systems, speaks of elevated standards. The flow between rooms feels effortless, making daily routines smoother and meetings more engaging. Imagine starting your mornings with sunlight streaming across your desk, pausing for a coffee in a quiet nook, and ending the day knowing your team is comfortable and secure. Swan Lake Residences is more than an address—it’s a statement of ambition and comfort, where your business can truly thrive.
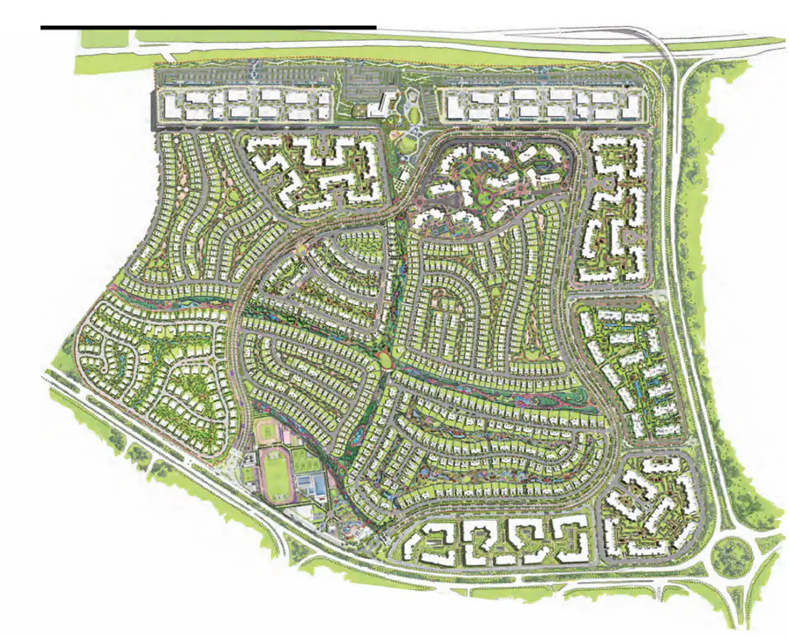
Compound Description
Community & Lifestyle
Swan Lake Residences is where community spirit and refined living blend seamlessly. The compound is a tapestry of twelve gated neighborhoods, each with its own character, yet all sharing a commitment to connection and well-being. Families gather in lush green spaces, children laugh along winding pedestrian paths, and neighbors become friends over weekend picnics or evening strolls. The 68,000 SQM Sports Club is a hub for activity, offering elite academies, wellness experts, and spaces for every age to move, play, and grow. Residents enjoy curated events—think seasonal festivals, art workshops, and fitness classes—that turn ordinary days into memorable moments. Convenience is woven into daily life, with retail and dining options just steps away, and top schools like the American University in Cairo under 10 minutes’ drive. Healthcare is close at hand, with clinics and pharmacies integrated into the masterplan. Swan Lake Residences is designed for those who value both privacy and belonging, where every corner invites you to pause, connect, and celebrate life’s simple joys. For a complete overview of Swan Lake Residences’ amenities and lifestyle, explore Swan Lake Residences.
















