Property Description
Step into a workspace that’s more than just an office—it’s a canvas for your ambitions. This 197 SQM office, with three private rooms and two bathrooms, is set within Swan Lake Residences by Hassan Allam Properties in New Cairo. The moment you enter, natural light pours through double-glazed windows, illuminating every corner and creating an atmosphere that feels both energizing and serene. The open-plan layout flows effortlessly, offering flexibility for collaborative meetings or quiet focus. Unfinished interiors let you tailor the space to your brand’s personality—whether you crave sleek minimalism or warm, inviting textures. Premium finishes in shared areas, like marble corridors and high-spec elevators, set a tone of understated luxury. Security and HVAC systems are seamlessly integrated, so comfort and peace of mind are always present. This office isn’t just a place to work; it’s where daily rituals become moments of inspiration, and every arrival feels like stepping into possibility. Here, you’re surrounded by the thoughtful design and elevated living that define Swan Lake Residences, making each day a little brighter and every meeting a little more meaningful.
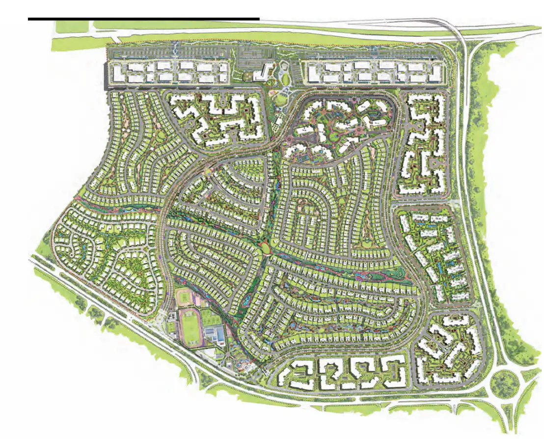
Compound Description
Luxury & Services
Swan Lake Residences is where luxury isn’t just a word—it’s woven into every detail of daily life. The compound welcomes you with grand entrances, tranquil water features, and lush landscaping that set the stage for a truly elevated experience. Residents and professionals alike enjoy five secure gates and private access points, ensuring both privacy and ease. The 68,000 SQM Sports Club is a hub for wellness and recreation, featuring elite academies, expert trainers, and spaces for every age group to thrive. Imagine finishing a productive day at the office and unwinding with a jog along landscaped paths, or joining a cycling group that loops through green valleys designed by Cracknell. The amenities extend beyond fitness: curated outdoor seating areas, expansive lawns for gatherings, and sparkling water features create spaces for connection and relaxation. Swan Lake Residences also offers concierge services, on-site maintenance, and a dedicated security team—so you can focus on what matters most. Dining options, boutique retail, and wellness centers are just steps away, making every convenience part of your daily rhythm. The compound’s commitment to luxury is matched by its attention to service, with community events and tailored programs that foster a sense of belonging. Whether you’re hosting a client lunch or enjoying a quiet evening stroll, Swan Lake Residences elevates every moment. For a complete overview of Swan Lake Residences’ amenities and lifestyle, explore Swan Lake Residences.
















