Property Description
Step into a workspace that feels like it was designed for possibility. This 177 SQM office, set within Swan Lake Residences by Hassan Allam Properties in New Cairo, offers three private rooms and two bathrooms, all arranged to maximize flow and natural light. The moment you enter, sunlight pours through double-glazed windows, illuminating every corner and creating an atmosphere that inspires productivity and calm. The open-plan layout encourages collaboration, yet each room offers enough privacy for focused work or confidential meetings. Unfinished interiors let you shape the space to your vision—whether you crave a sleek contemporary finish or a warm, inviting ambiance. Premium features like advanced HVAC, marble corridors, and secure access add a touch of luxury to daily routines. Imagine starting your mornings with coffee by the window, watching the gardens below come alive, or hosting clients in a setting that speaks of professionalism and comfort. Here, every detail—from the quiet hum of the elevators to the thoughtful placement of janitor rooms—makes work feel less like a chore and more like an experience. Swan Lake Residences isn’t just an address; it’s a statement about how you choose to work and live.
Compound Description
Community & Lifestyle
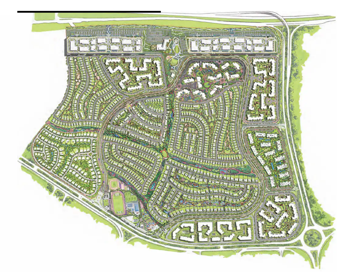
Swan Lake Residences is more than a collection of homes and offices—it’s a vibrant community where every day brings new opportunities to connect, grow, and thrive. Families gather in lush green spaces, children play safely within gated neighborhoods, and neighbors become friends over morning walks or evening gatherings. The compound’s twelve distinct neighborhoods each offer their own character, blending timeless elegance with a sense of belonging. Social clubs and curated events fill the calendar, from weekend farmers’ markets to art workshops and wellness classes. The 68,000 SQM sports club is a hub for activity, hosting elite academies, fitness sessions, and community tournaments. Residents enjoy a lifestyle that balances relaxation with engagement, supported by amenities like jogging tracks, cycling lanes, and outdoor seating areas perfect for unwinding or catching up. Swan Lake Residences is designed for every stage of life—young professionals, growing families, and retirees all find their place here. Proximity to top schools such as the American University in Cairo, leading hospitals, and retail destinations like Cairo Festival City means your daily needs are always within reach. The landscape, crafted by Cracknell, weaves nature into every corner, inviting you to pause and breathe. Here, community isn’t just a word—it’s woven into the fabric of daily life, making Swan Lake Residences a place where you truly belong.
For a complete overview of Swan Lake Residences’ amenities and lifestyle, explore Swan Lake Residences.
















