Property Description
Step into a workspace that redefines the everyday office. This 167 SQM office, set within Swan Lake Residences by Hassan Allam Properties in New Cairo, is more than just a place to work—it’s a canvas for your ambitions. With three spacious rooms and two sleek bathrooms, the layout flows effortlessly, inviting natural light through double-glazed windows that keep the atmosphere bright and focused. The unfinished interiors let you shape the space to your vision, whether you crave open collaboration zones or quiet corners for deep work. Every detail, from the premium marble corridors to the advanced HVAC and security systems, speaks to a commitment to comfort and professionalism. The office is positioned to offer tranquil garden views, giving you a moment of calm between meetings. Here, you’ll find the Swan Lake Residences experience woven into every inch—flexibility, elegance, and the promise of a workspace that grows with you. It’s the kind of place where morning routines feel inspired, and every day brings a sense of arrival. For those seeking Swan Lake Residences and a truly elevated business environment, this office stands out as a statement of innovation and thoughtful design.
Compound Description
Innovation & Design
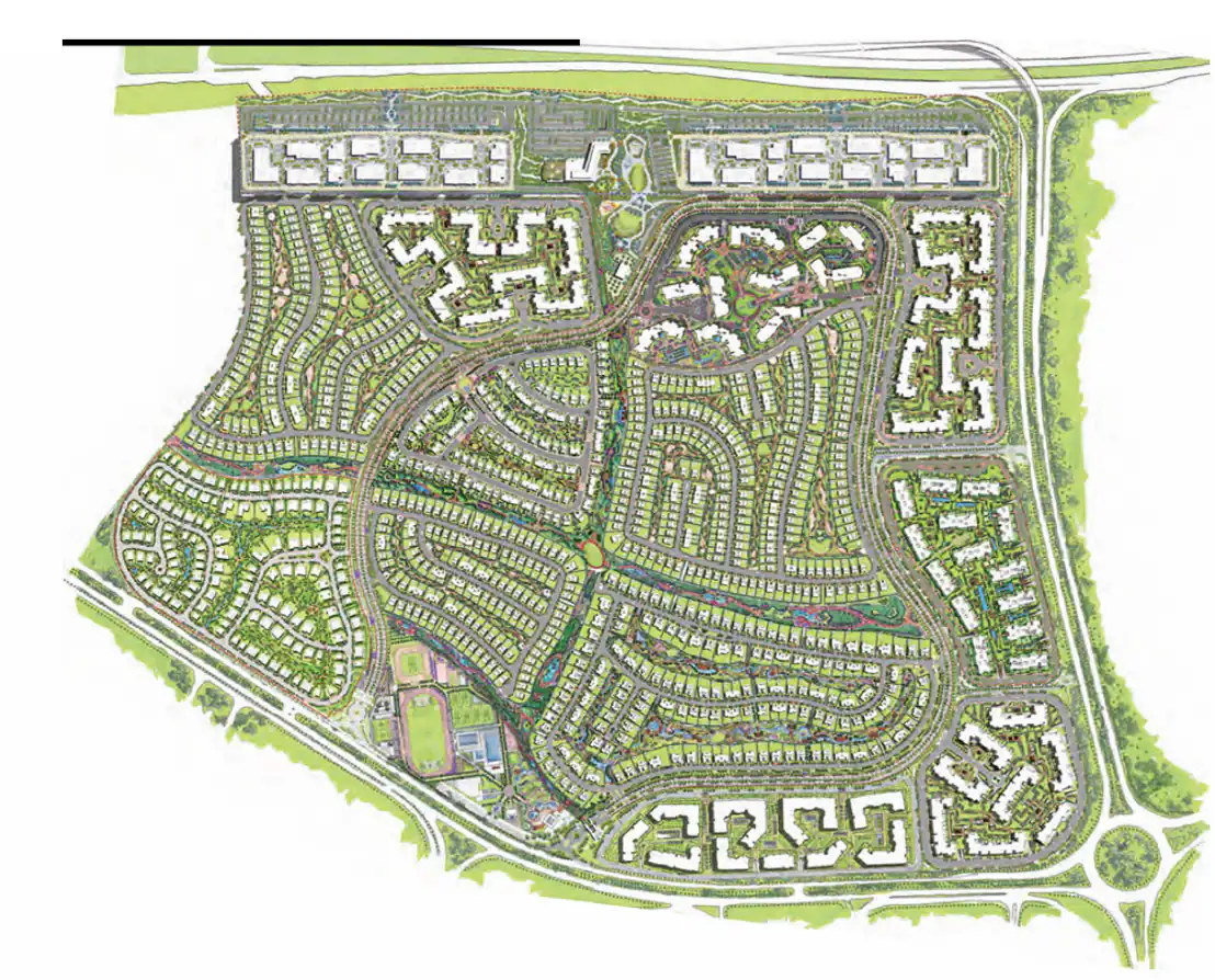
Swan Lake Residences is a living testament to the art of modern community planning. The compound’s masterplan, crafted by renowned architects and landscape designers, blends cutting-edge innovation with timeless elegance. Each neighborhood is shaped to foster both privacy and connection, with winding pedestrian paths and green corridors that encourage spontaneous encounters and quiet reflection. Smart infrastructure runs beneath the surface—energy-efficient lighting, water-saving systems, and integrated security networks ensure every detail supports a sustainable, seamless lifestyle. The architecture itself is a dialogue between contemporary lines and cultural inspiration, with facades that shift in the sunlight and interiors designed for flexibility and comfort. Residents benefit from high-speed fiber connectivity, app-based home management, and curated communal spaces that adapt to changing needs. Swan Lake Residences is also home to creative hubs and co-working lounges, inviting collaboration and innovation beyond the traditional office. The compound’s commitment to design excellence is visible in every corner, from the sculpted water features to the thoughtfully placed seating areas that invite you to pause and recharge. Here, living is an experience—one that evolves with technology, embraces artistry, and celebrates the spirit of New Cairo. For a complete overview of Swan Lake Residences’ amenities and lifestyle, explore Swan Lake Residences.
















