Property Description
Step into this 156 SQM office space, thoughtfully designed for those who appreciate both function and form. Located within Swan Lake Residences by Hassan Allam Properties in New Cairo, this workspace is more than just an address—it’s a statement. With three private rooms and two bathrooms, the layout flows naturally, inviting sunlight through double-glazed windows that frame tranquil garden views. The open-plan design encourages collaboration, while unfinished interiors allow you to tailor every corner to your vision. Premium finishes in public areas—marble corridors, sleek elevators, and secure access—set the tone for a professional yet welcoming environment. The sense of arrival is immediate: you’re greeted by a quiet lobby, then drawn into spaces that balance privacy with openness. Whether you’re hosting clients or brainstorming with your team, the atmosphere is both inspiring and practical. Security, HVAC, and janitorial services are seamlessly integrated, so daily routines run smoothly. Here, every detail—from the positioning of the windows to the flow between rooms—has been considered for comfort and productivity. It’s a place where morning light energizes, and evening meetings feel effortless. Swan Lake Residences isn’t just a workspace; it’s where your business finds its rhythm.
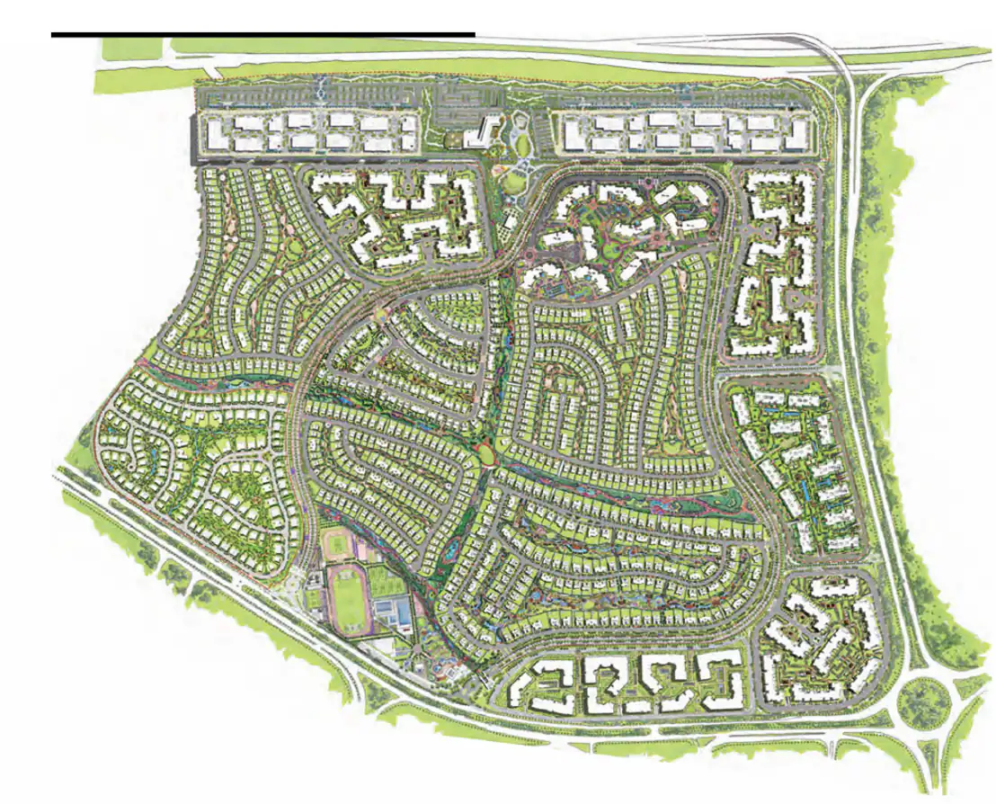
Compound Description
Community & Lifestyle
Swan Lake Residences is more than a collection of buildings—it’s a vibrant community where connections flourish and daily life feels elevated. Families, professionals, and creatives come together across twelve gated neighborhoods, each with its own character and charm. The compound’s heart beats with activity: children’s laughter on sprawling lawns, neighbors gathering in shaded outdoor seating areas, and friends meeting for coffee at the local café. Social clubs and curated events—like weekend farmers’ markets or seasonal festivals—bring residents together, weaving a tapestry of shared experiences. The 68,000 SQM Sports Club is a hub for wellness and play, offering elite academies, jogging tracks, and cycling lanes that invite you to move and explore. Safety and privacy are woven into the fabric of daily life, thanks to five secure gates and individual parcel access points. Convenience is never far away; top schools such as the American International School are under 10 minutes by car, while medical clinics and retail anchors like Cairo Festival City are just a short drive. The landscape, designed by Cracknell, creates green corridors and tranquil water features, making every stroll a refreshing escape. Swan Lake Residences is a place where you can grow roots, nurture friendships, and enjoy a lifestyle that feels both exclusive and welcoming. For a complete overview of Swan Lake Residences’ amenities and lifestyle, explore Swan Lake Residences.
















