Property Description
Step into a workspace that truly elevates your day—a 145 SQM office, thoughtfully designed for both comfort and productivity, nestled within Swan Lake Residences by Hassan Allam Properties in New Cairo. This premium office features double-glazed windows that flood the rooms with natural light, creating an atmosphere where ideas flow as easily as the morning sun. With two spacious rooms and a flexible open area, the layout encourages collaboration while still offering pockets of privacy for focused work. The unfinished interiors invite you to shape the space to your vision—whether you crave a sleek executive suite or a creative hub. Every detail, from the marble corridors to the advanced HVAC and security systems, speaks to the elevated standards of Swan Lake Residences. The office overlooks lush gardens, offering a calming view that softens the edges of a busy workday. Here, you’ll find a seamless blend of sophistication and functionality, making every arrival feel like stepping into a place where your ambitions are truly at home. It’s more than just an office—it’s a canvas for your next chapter, set within a community that values excellence and comfort.
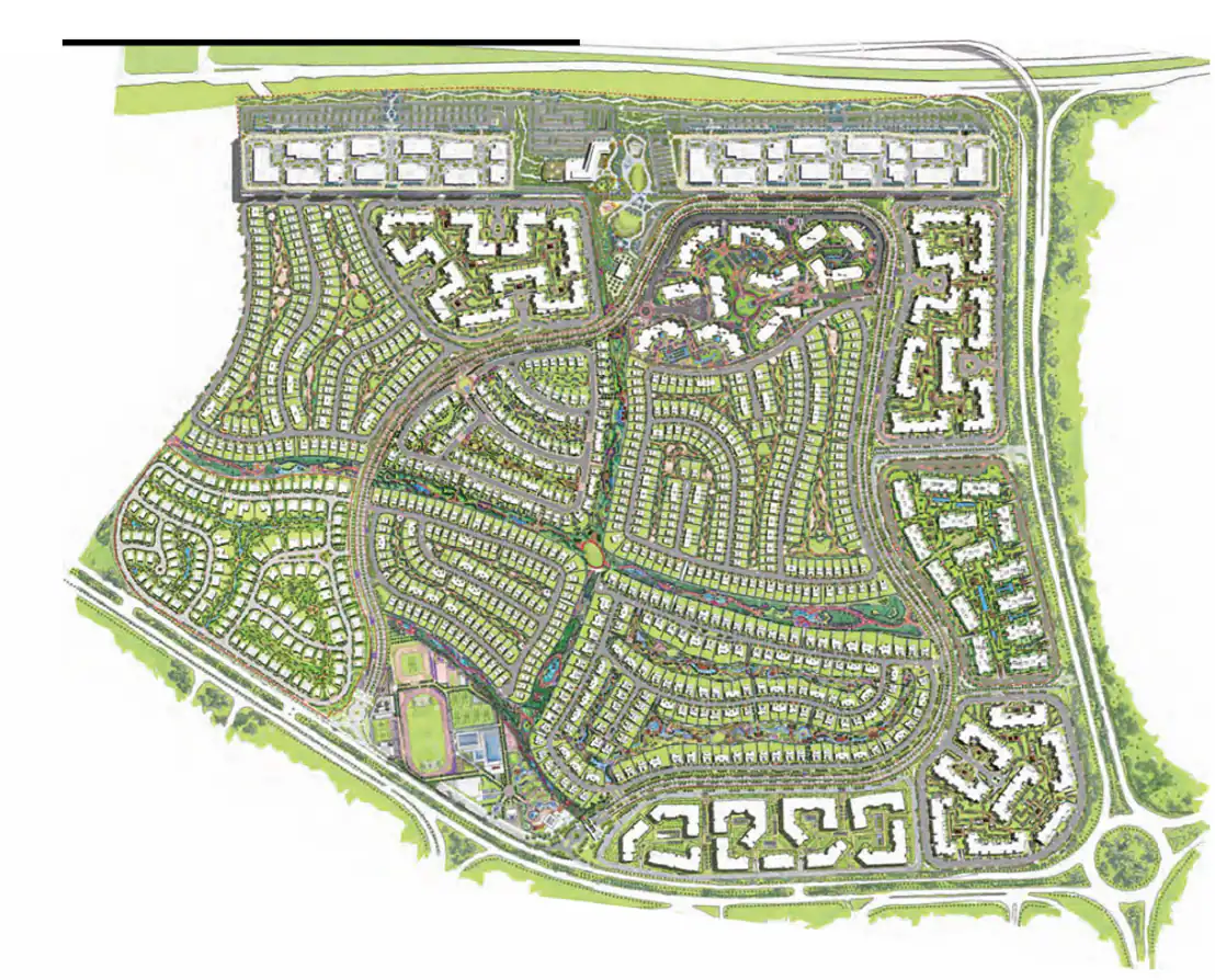
Compound Description
Luxury & Services
Swan Lake Residences sets a new benchmark for luxury living in New Cairo, with every detail curated to enrich your daily experience. The compound’s twelve gated neighborhoods offer a sense of exclusivity and tranquility, each with its own architectural flair and lush landscaping. Residents enjoy access to a world-class Sports Club spanning 68,000 SQM, featuring elite academies, wellness experts, and tailored programs for all ages. The amenities go beyond the expected, with marble-finished corridors, dedicated janitor rooms, and comprehensive security ensuring peace of mind. For those who appreciate convenience, Swan Lake Residences is just under 6 km from Cairo International Airport and less than 10 minutes from the American University in Cairo, making travel and education effortless. Retail and dining options are woven into the masterplan, with boutique shops and gourmet cafes just a stroll away. The compound’s five secure gates and individual parcel access points offer both privacy and ease, while the landscape—crafted by Cracknell—invites you to unwind among green valleys and sparkling water features. Residents benefit from smart-home technology, energy-efficient systems, and a dedicated concierge service that anticipates every need. Whether you’re hosting a business meeting, enjoying a family weekend, or seeking a quiet moment in the gardens, Swan Lake Residences delivers a lifestyle where luxury is woven into every moment. For a complete overview of Swan Lake Residences’ amenities and lifestyle, explore Swan Lake Residences.
















